RODINNÝ DŮM S MÍSTEM K PODNIKÁNÍ V KRCHLEBECH U STAŇKOVA
Představuji Vám příležitost stát se majitelem unikátního rodinného domu v malebné a klidné obci.
Tento jednopatrový dům s rozlohou zastavěné plochy 178 m² právě prochází rozsáhlou rekonstrukcí, která mu dodává moderní charakter a funkčnost. Rekonstrukce je z větší části hotová.Na stavbu je navíc vydáno platné stavební povolení, což zajišťuje bezproblémový průběh dokončovacích prací.
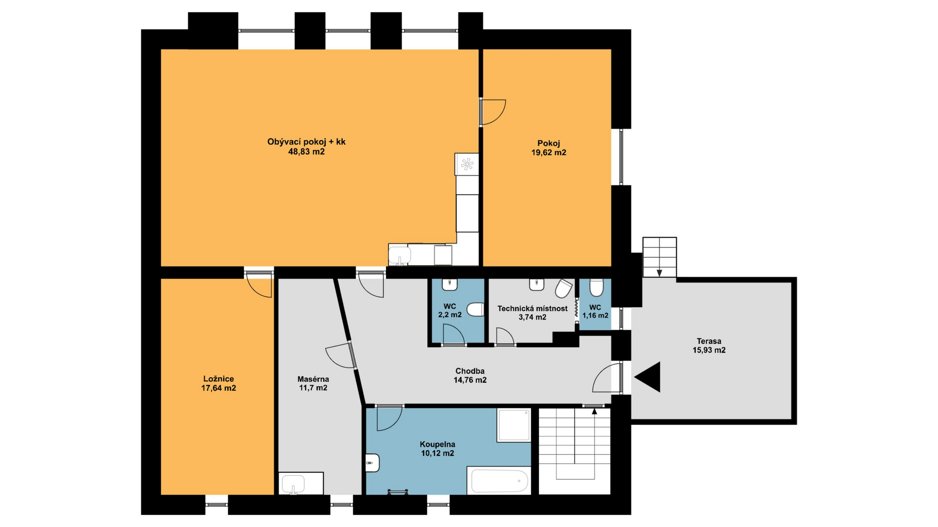
Podlahová plocha činí 148,5 m2.
plochy jednotlivých částí RD:
- obývací pokoj + kuchyňský kout 48,83 m2
- pokoj 19,62 m2
- ložnice 17,64 m2
- masérka 11,7 m2
- chodba 14,76 m2
- wc 2,2 m2
- technická místnost 3,74 m2
- wc 1,16 m2
- koupelna 10,12 m2
- terasa 15,93 m2
Dům je částečně podsklepen, přičemž sklep nabízí dalších 38,31 m² prostoru, který může být využit pro různé účely – od skladování po dílnu.
plochy jednotlivých prostor sklepa:
- chodba 9,96 m2
- schodišťový prostor 3,93 m2
- uhelna 10,22 m2
- sklep 14,2 m2
Pozemek má rozlohu 169 m2. Je skvělý pro ty, kteří mají rádi, když se jim tráva nepřerůstá přes hlavu! Ano, znamená to méně práce se sekáním a více času na užívání si.
Speciálním bonusem je předschválený projekt pro provozování služeb, jako jsou masáže, pedikúra, manikůra nebo kadeřnictví, což přináší skvělou příležitost pro kombinaci bydlení a podnikání pod jednou střechou.
Tento prostor může být jednoduše upraven a využíván také jako plně bezbariérový, což zvyšuje jeho univerzálnost a přístupnost.
Dům nabízí v současné době možnost okamžitého bydlení v části nemovitosti, zatímco zbytek domu může být dokončen během běžného provozu – ideální pro ty, kdo chtějí kreativně přizpůsobit prostor svým představám. Skoro všechen materiál potřebný k dokončení rekonstrukce je již na místě.
Vytápění zajišťuje nový kotel na tuhá paliva Atmos CS 18 – emisní třída 4-5. Komín je vyvložkovaný nerezovou vložkou o pr. 16 cm, což zaručuje efektivitu a bezpečnost.
Nemovitost je napojena na: – kanalizaci, vodovod – nově provedeno v plastu elektřinu – nové rozvody v mědi.
– elektřinu – nové rozvody v mědi
Pro ty, kteří preferují alternativní zdroje, je před domem v komunikaci veden plyn, který lze snadno připojit.
Střecha domu zateplena lepenými polystyrenovými deskami a kryta asfaltovými pásy. Kompletě nové klempířské prvky na střeše.
Stropy v místnostech řešeny sádrokartonem spolu s foukanou stropní izolací.
Zbývá dokončit dle projektu:
* v hlavní obytné místnosti – sádrokartonových strop – nosníky i sádrokarton jsou již připraveny
– zásuvky a vypínače – rozvod elektřiny hotový, následně nainstalovat světla
– omítky
– položení finální podlahové krytiny
* terasa – dle projektu má být vyzděny 150 mm Ytongem a zastřešena trámy – vše již zakoupeno a je k dispozici
* zateplení a fasáda – šedý polystyren tl. 160 mm
Lokalita domu je strategicky umístěna s dobrou dostupností občanské vybavenosti a pracovních příležitostí v okolí. Blízkost 37 km k hranicím rovněž otevírá další možnosti pro mezinárodní obchod nebo časté cestování.
Nezmeškejte tuto jedinečnou šanci na nákup domu, který nabízí nejen pohodlné bydlení, ale také možnosti pro rozvoj vašeho podnikání. Kontaktujte mě pro více informací nebo prohlídku této nemovitosti a začněte psát novou kapitolu svého života v Krchlebech!






































